Product Introduction

PETRO EVER-SEAL

Overview of Technology
  • The EVER technique is a construction method for ensuring excellent waterproof performance and behavior response through the formation of a double complex waterproof structure by simultaneously constructing EVER-SEAL and EVER-SHEET, an improved asphalt sheet that maintains a non-hardening state after construction.

Types of Product

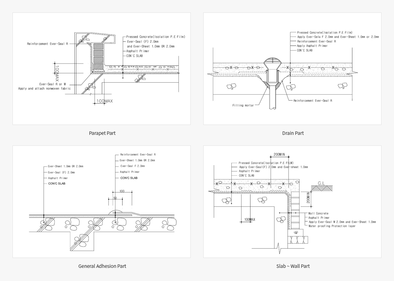
Construction Floor Plan
Packaging Unit
Product Name Product Photo Packaging Unit
Primer 18ℓ
EVER-R
(For Reinforcement)
20KG
EVER-W
(For walls)
20KG
EVER-F
(For floors)
20KG
EVER-Sheet Thickness : 1~2mm
Width : 100cm
Length : 10~20m
EVER A+ Sheet Thickness : 1~2mm
Width : 100cm
Length : 10~20m
Quality Standard

- LH 42531 (2011) : Rubber Asphalt Double-layered Waterproof

Item Quality Standard
Solid (%) Above 70
Dissolvement (%) Above 15.0, Below 30.0
Flow Resistance 3 sheets all have flow length of below 3.0. No wrinkles.
Alkali Resistance No Problem
Heat Resistance (60℃) No Problem
Low-temperature Curve (-15℃) No Problem

- KS F 4917 (2016) : Improved asphalt waterproof sheet

Classification according to use Non-exposure multiple layer waterproof
Classification according to material composition TYPE A
Tensile Performance Tensile Strength (N/㎜) Untreated Above 5.0
After heating Above 80% of untreated test value
After soaking alkali
Coefficient of Expansion (%) Untreated Above 15
After heating Above 80% of untreated test value
After soaking alkali
Tensile Product (N·%/㎜) Untreated Above 200
Tearing Performance (N) Above 20
Heat Resistance Performance Roll Down Length (㎜) Below 5
Appearance Will not roll down or shoot out.
Fatigue performance Will not rip, crack, or be blocked
Dimensional stability Change Rate of value (%)

0.0±1.0

Appearance No creases, bending, or detachment between layers
Joint Performance (N/㎜) Above 4.0 or above 70% of untreated tensile strength
Pitting Performance No Hole
Construction Method
    1. Cleaning up the Base
  • Clean the foreign substances (rust, remains, dust, sand, and paint) with a brush or fan.
  • Use vinyl or tape to protect the drain from not being blocked.
  • For other treatment, refer to specifications.


    2. Apply Primer
  • The Petro EVER-SEAL itself plays the role as a primer. Thus, decide the usage of primer according to the status of the base.
  • Spread the primer when there is remaining dust or when there is serious gap on the base.


    3. Reinforce the vulnerable parts
  • Reinforce the vulnerable parts by using PETRO EVER-R.
  • For R-surface, use EVER-W+


    4. Apply PETRO EVER-SEAL
  • Use saw tooth or trowel to apply the EVER-SEAL on the base evenly.
  • Put on rubber gloves to apply on parts that cannot be applied with tools.


    5. Attach PETRO EVER-SHEET
  • While spreading PETRO EVER-SEAL, spread the EVER-SHEET.
  • Make sure there is no air-pocket between the EVER-SHEET and EVER-SEAL.
  • Lightly apply EVER-SEAL and then overlap the EVER-SHEET.


    6. Reinforce PETRO-EVER-R
  • Reinforce the overlapping parts between the sheets with EVER-R.
  • Use EVER-R for vulnerable parts such as joints.